














Available
3DK Property Iyo City Ehime Prefecture
Loading...
Est. Total (incl. fees): $13,626
14 views
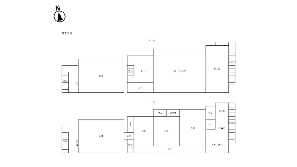
This 3DK property, constructed in 1974, is situated in Nakayama-cho Sareya, Iyo City, Ehime Prefecture. It offers a spacious building footprint of 154.71m² on a generous lot of 166.81m². The primary construction materials are wood and light steel frame, ensuring structural integrity, and it includes...
Property details
YEAR BUILT
1974
🔴
Pre-1981 seismic standard
Bedrooms
3
BUILDING MATERIAL
Other wood, lightweight steel frame
BUILDING SIZE
154.71 sqm
LOT SIZE
166.81 sqm
LAND OWNERSHIP
Freehold
ZONING
Residential
FLOOR
2
PARKING SPACE
—
MINPAKU LIKELIHOOD
Unsure
Nearest station
Airport
Onsen
Supermarket
Conveni
Hospital / Clinic
Floorplan

Source:View original listing
Loading...
Est. Total (incl. fees): $13,626
14 views
Available
...
