


Available
6LDK Property Miki-cho Kagawa Prefecture
Loading...
Est. Total (incl. fees): $41,459
5 views
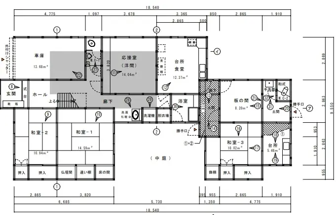
Located in Miki-cho, Kagawa Prefecture, this wooden two-story residence offers a spacious 6LDK layout. The property features a generous building footprint of 162.91 square meters on a substantial lot of 242.60 square meters, providing ample living and outdoor space. Constructed in 1977, the home mai...
Property details
YEAR BUILT
1977
🔴
Pre-1981 seismic standard
Bedrooms
6
BUILDING MATERIAL
Wooden
BUILDING SIZE
162.91 sqm
LOT SIZE
242.6 sqm
LAND OWNERSHIP
Freehold
ZONING
Residential
FLOOR
2
PARKING SPACE
—
MINPAKU LIKELIHOOD
Unsure
Nearest station
Airport
Onsen
Supermarket
Conveni
Hospital / Clinic
Floorplan

Source:View original listing
Loading...
Est. Total (incl. fees): $41,459
5 views
Available
...
