




Available
Kagawa Prefecture Miki Town 9LDK Property
Loading...
Est. Total (incl. fees): $75,232
9 views
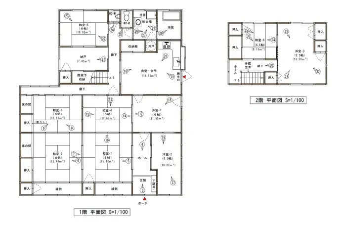
Located in Miki Town, Kagawa Prefecture, this expansive 9LDK wooden residence offers a remarkable opportunity for substantial living. The property features a robust building area of 203.67 square meters, thoughtfully laid out to maximize space and functionality. It is situated on an exceptionally ge...
Property details
YEAR BUILT
Unknown
Bedrooms
9
BUILDING MATERIAL
Wooden
BUILDING SIZE
203.67 sqm
LOT SIZE
744.46 sqm
LAND OWNERSHIP
Freehold
ZONING
Residential
FLOOR
2
PARKING SPACE
—
MINPAKU LIKELIHOOD
Unlikely
Nearest station
Airport
Onsen
Supermarket
Conveni
Hospital / Clinic
Floorplan

Source:View original listing
Loading...
Est. Total (incl. fees): $75,232
9 views
Available
...
