

Available
Kagawa Prefecture Manno-cho 5DK Property
Loading...
5 views
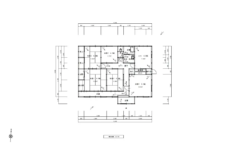
This 5DK detached house is situated in Kishigami, Manno-cho, Kagawa Prefecture, presenting a significant residential opportunity. The property boasts a generous total floor area of 117.10 square meters, providing ample space for family living or various lifestyle configurations. Constructed in 1980...
Property details
YEAR BUILT
1980
🔴
Pre-1981 seismic standard
Bedrooms
5
BUILDING MATERIAL
Wooden
BUILDING SIZE
117.1 sqm
LOT SIZE
0 sqm
LAND OWNERSHIP
Freehold
ZONING
Residential
FLOOR
—
PARKING SPACE
—
MINPAKU LIKELIHOOD
Unsure
Nearest station
Airport
Onsen
Supermarket
Conveni
Hospital / Clinic
Floorplan

Source:View original listing
Loading...
5 views
Available
...
