
Available
4LDK Property Mine City Yamaguchi Prefecture
Loading...
Est. Total (incl. fees): $34,485
3 views
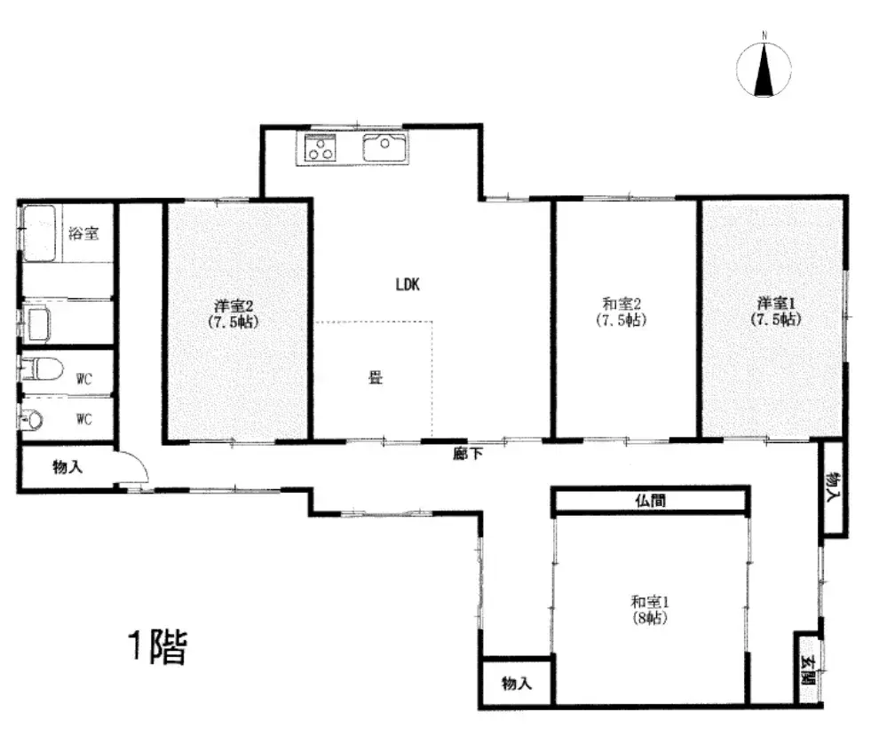
This 4LDK property, constructed in 1980, is a well-maintained wooden house situated in Mine City, Yamaguchi Prefecture. The residence boasts a generous building area of 154.45 square meters, designed to offer comfortable and practical living spaces for a family. It features a functional layout inclu...
Property details
YEAR BUILT
1980
🔴
Pre-1981 seismic standard
Bedrooms
4
BUILDING MATERIAL
Wooden
BUILDING SIZE
154.45 sqm
LOT SIZE
0 sqm
LAND OWNERSHIP
Freehold
ZONING
Residential
FLOOR
—
PARKING SPACE
—
MINPAKU LIKELIHOOD
Unlikely
Nearest station
Airport
Onsen
Supermarket
Conveni
Hospital / Clinic
Floorplan

Source:View original listing
Loading...
Est. Total (incl. fees): $34,485
3 views
Available
...
