


















Available
7LDK Property Takehara City Hiroshima Prefecture
Loading...
Est. Total (incl. fees): $41,459
7 views
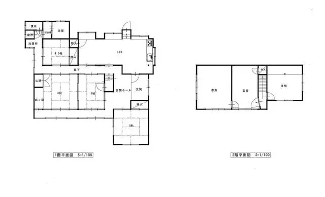
This substantial 7LDK detached wooden house offers an expansive living environment. Built in 1958, the property boasts a significant building area of 181.3 square meters and an exceptionally large land area of 478.99 square meters, providing ample room for diverse residential arrangements or potenti...
Property details
YEAR BUILT
1958
🔴
Pre-1981 seismic standard
Bedrooms
7
BUILDING MATERIAL
Wooden
BUILDING SIZE
181.3 sqm
LOT SIZE
478.99 sqm
LAND OWNERSHIP
Freehold
ZONING
Industrial
FLOOR
2
PARKING SPACE
—
MINPAKU LIKELIHOOD
Unlikely
Nearest station
Airport
Onsen
Supermarket
Conveni
Hospital / Clinic
Floorplan

Source:View original listing
Loading...
Est. Total (incl. fees): $41,459
7 views
Available
...
