


















Available
6DK Property Takehara City Hiroshima Prefecture
Loading...
Est. Total (incl. fees): $20,579
10 views
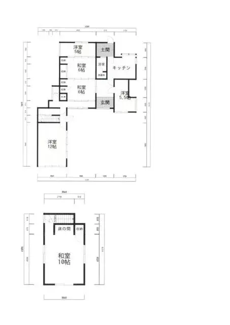
Located in Takehara Town, Takehara City, Hiroshima Prefecture, this 6DK wooden property was constructed in 1958. It features a building area of 122.28 square meters on a lot of 251.23 square meters. The property is situated within a semi-industrial zoning area. This residence offers a tranquil envi...
Property details
YEAR BUILT
1958
🔴
Pre-1981 seismic standard
Bedrooms
6
BUILDING MATERIAL
Wooden
BUILDING SIZE
122.28 sqm
LOT SIZE
251.23 sqm
LAND OWNERSHIP
Freehold
ZONING
Industrial
FLOOR
2
PARKING SPACE
—
MINPAKU LIKELIHOOD
Unlikely
Nearest station
Airport
Onsen
Supermarket
Conveni
Hospital / Clinic
Floorplan

Source:View original listing
Loading...
Est. Total (incl. fees): $20,579
10 views
Available
...
