








Available
5LDK Property Okuizumo-cho Shimane Prefecture
Loading...
Est. Total (incl. fees): $60,928
2 views
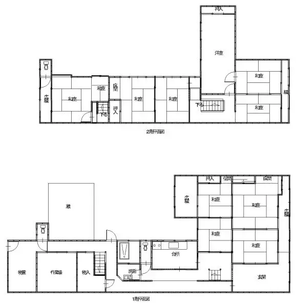
This 5LDK wooden residence is located in Okuizumo-cho, Shimane Prefecture. The property boasts a substantial total floor area of 277.68 square meters, providing ample living space, and is equipped with a single bathroom. Built in 1935, its traditional wooden construction offers a unique opportunity...
Property details
YEAR BUILT
1935
🔴
Pre-1981 seismic standard
Bedrooms
5
BUILDING MATERIAL
Wooden
BUILDING SIZE
277.68 sqm
LOT SIZE
0 sqm
LAND OWNERSHIP
Freehold
ZONING
Residential
FLOOR
—
PARKING SPACE
—
MINPAKU LIKELIHOOD
Unsure
Nearest station
Airport
Onsen
Supermarket
Conveni
Hospital / Clinic
Floorplan

Source:View original listing
Loading...
Est. Total (incl. fees): $60,928
2 views
Available
...
