








Available
5LDK Property Okuizumo-cho Shimane
Loading...
Est. Total (incl. fees): $27,532
8 views
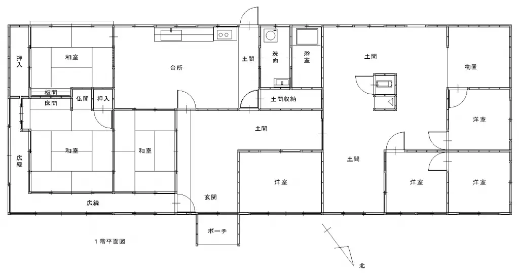
This 5LDK wooden house is located in Yakawa, Okuizumo-cho, Nita-gun, Shimane Prefecture. It features a spacious lot of 409.34 square meters, providing ample outdoor space and potential for various uses. The traditional wooden construction offers durability and a classic Japanese architectural aesthe...
Property details
YEAR BUILT
Unknown
Bedrooms
5
BUILDING MATERIAL
Wooden
BUILDING SIZE
-
LOT SIZE
409.34 sqm
LAND OWNERSHIP
Freehold
ZONING
Residential
FLOOR
—
PARKING SPACE
—
MINPAKU LIKELIHOOD
Unsure
Nearest station
Airport
Onsen
Supermarket
Conveni
Hospital / Clinic
Floorplan

Source:View original listing
Loading...
Est. Total (incl. fees): $27,532
8 views
Available
...
