









Available
14K Property Yazu Town Tottori Prefecture
Loading...
Est. Total (incl. fees): $55,365
4 views
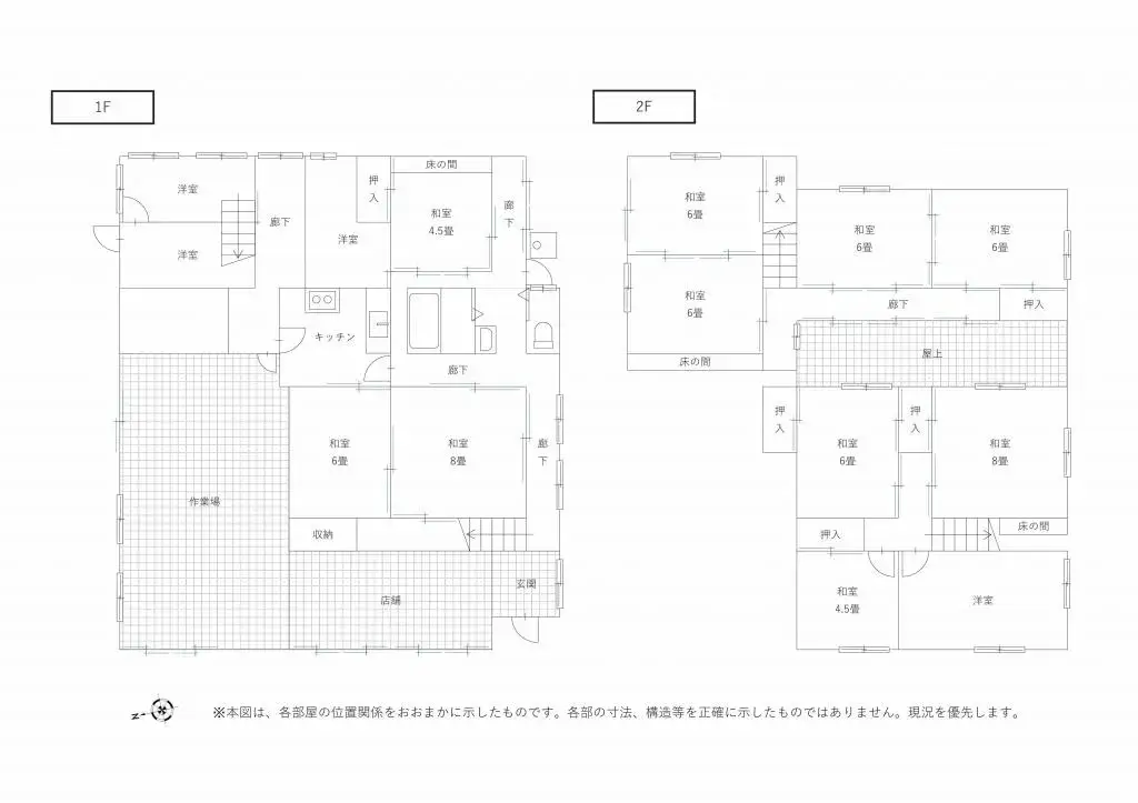
This substantial 14-room wooden residence is situated in Yazu Town, within the tranquil Yazu District of Tottori Prefecture. The property boasts a generous building footage of 196.68 square meters set on a spacious lot of 244.62 square meters, offering ample room for diverse living arrangements. Bui...
Property details
YEAR BUILT
1947
🔴
Pre-1981 seismic standard
Bedrooms
14
BUILDING MATERIAL
Wooden
BUILDING SIZE
196.68 sqm
LOT SIZE
244.62 sqm
LAND OWNERSHIP
Freehold
ZONING
Residential
FLOOR
2
PARKING SPACE
—
MINPAKU LIKELIHOOD
Unsure
Nearest station
Airport
Onsen
Supermarket
Conveni
Hospital / Clinic
Floorplan

Source:View original listing
Loading...
Est. Total (incl. fees): $55,365
4 views
Available
...
