




Available
6SLDK Property Katsuragi-cho Wakayama Prefecture
Loading...
Est. Total (incl. fees): $147,010
11 views
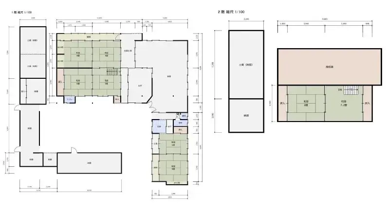
This substantial 6SLDK residential property is situated in Katsuragi-cho, Ito-gun, Wakayama Prefecture, an area known for its natural surroundings. It features a remarkably generous lot size of 527.85 square meters, offering extensive outdoor possibilities for gardening or leisure, coupled with a sp...
Property details
YEAR BUILT
Unknown
Bedrooms
6
BUILDING MATERIAL
Wooden
BUILDING SIZE
279.32 sqm
LOT SIZE
527.85 sqm
LAND OWNERSHIP
Freehold
ZONING
Residential
FLOOR
2
PARKING SPACE
—
MINPAKU LIKELIHOOD
Unsure
Nearest station
Airport
Onsen
Supermarket
Conveni
Hospital / Clinic
Floorplan

Source:View original listing
Loading...
Est. Total (incl. fees): $147,010
11 views
Available
...
