








Available
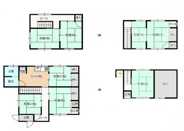
8DK Minamiawaji City Hyogo Prefecture
Loading...
Est. Total (incl. fees): $25,168
1 view
This property, located in Minamiawaji City, Hyogo Prefecture, offers a spacious 8DK layout. With a building footage of 98.04 square meters and a lot footage of 119.92 square meters, it provides ample space for family living. Constructed in 1969, this two-story wooden structure is built to last. The...
Property details
YEAR BUILT
1969
🔴
Pre-1981 seismic standard
Bedrooms
8
BUILDING MATERIAL
Wooden
BUILDING SIZE
98.04 sqm
LOT SIZE
119.92 sqm
LAND OWNERSHIP
Freehold
ZONING
Residential
FLOOR
2
PARKING SPACE
—
MINPAKU LIKELIHOOD
Unsure
Nearest station
Airport
Onsen
Supermarket
Conveni
Hospital / Clinic
Floorplan

Source:View original listing
Loading...
Est. Total (incl. fees): $25,168
1 view
Available
...
