





Available
14DK Property Ichikawa-cho Hyogo Prefecture
Loading...
Est. Total (incl. fees): $34,485
7 views
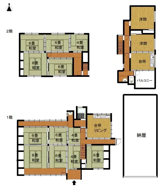
This expansive wooden-structured residence, situated in Kitanaka, Ichikawa-cho, Hyogo Prefecture, presents a rare opportunity for those seeking substantial space in a serene Japanese locale. Built in 1984, the property features an impressive 14DK layout, indicating a versatile arrangement of rooms s...
Property details
YEAR BUILT
1984
Bedrooms
14
BUILDING MATERIAL
Wooden
BUILDING SIZE
352.99 sqm
LOT SIZE
500.01 sqm
LAND OWNERSHIP
Freehold
ZONING
Residential
FLOOR
2
PARKING SPACE
—
MINPAKU LIKELIHOOD
Unsure
Nearest station
Airport
Onsen
Supermarket
Conveni
Hospital / Clinic
Floorplan

Source:View original listing
Loading...
Est. Total (incl. fees): $34,485
7 views
Available
...
