






Available
Hyogo Prefecture Sanda City 5DK Property
Loading...
Est. Total (incl. fees): $25,446
9 views
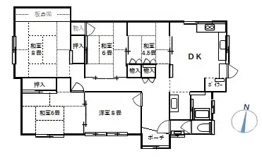
This substantial property, situated in the residential area of Okawase, Sanda City, Hyogo Prefecture, offers a practical 5DK layout, ideal for a family. Spanning 108.73 square meters of building footage on a generous 297.69 square meter lot, the residence provides considerable living space along wit...
Property details
YEAR BUILT
1978
🔴
Pre-1981 seismic standard
Bedrooms
5
BUILDING MATERIAL
Wooden
BUILDING SIZE
108.73 sqm
LOT SIZE
297.69 sqm
LAND OWNERSHIP
Freehold
ZONING
Residential
FLOOR
—
PARKING SPACE
—
MINPAKU LIKELIHOOD
Unsure
Nearest station
Airport
Onsen
Supermarket
Conveni
Hospital / Clinic
Floorplan

Source:View original listing
Loading...
Est. Total (incl. fees): $25,446
9 views
Available
...
