
















Available
7DK Property Shin'onsen-cho Hyogo Prefecture
Loading...
Est. Total (incl. fees): $36,571
4 views
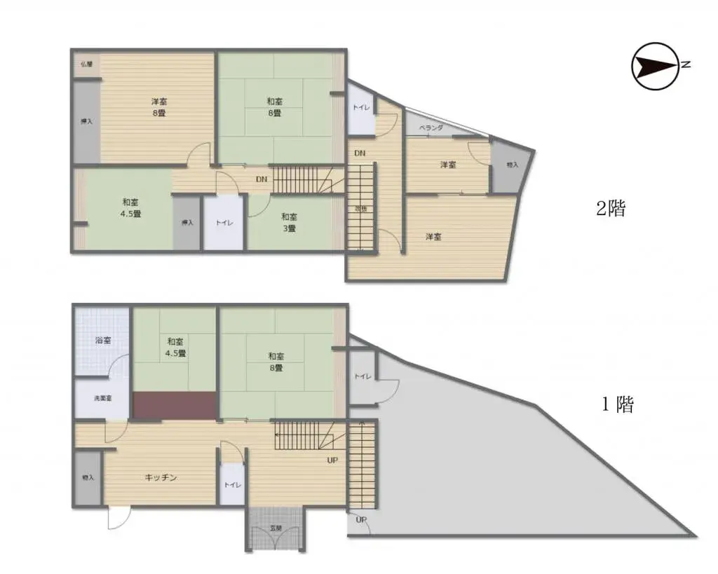
This property, located in Utanaga, Shin'onsen-cho, Hyogo Prefecture, is a 7DK wooden house built in 1977. It offers a substantial living area, well-suited for large families or those requiring multiple private rooms, with its versatile 7DK layout. The total building footage is 113.55 square meters,...
Property details
YEAR BUILT
1977
🔴
Pre-1981 seismic standard
Bedrooms
7
BUILDING MATERIAL
Wooden
BUILDING SIZE
113.55 sqm
LOT SIZE
218.17 sqm
LAND OWNERSHIP
Freehold
ZONING
Residential
FLOOR
2
PARKING SPACE
—
MINPAKU LIKELIHOOD
Unsure
Nearest station
Airport
Onsen
Supermarket
Conveni
Hospital / Clinic
Floorplan

Source:View original listing
Loading...
Est. Total (incl. fees): $36,571
4 views
Available
...
