





















Available
7SK Property Nantan City Kyoto Prefecture
Loading...
Est. Total (incl. fees): $148,444
5 views
This substantial property, located in the serene area of Hiyoshicho Tonoda within Nantan City, Kyoto Prefecture, offers a considerable opportunity for a variety of uses. The residence features a spacious 7SK layout, providing abundant room across its many versatile spaces, ideal for a large family o...
Property details
YEAR BUILT
1974
🔴
Pre-1981 seismic standard
Bedrooms
7
BUILDING MATERIAL
Rc
BUILDING SIZE
246.6 sqm
LOT SIZE
612.7 sqm
LAND OWNERSHIP
Freehold
ZONING
Residential
FLOOR
3
PARKING SPACE
—
MINPAKU LIKELIHOOD
Unlikely
Nearest station
Airport
Onsen
Supermarket
Conveni
Hospital / Clinic
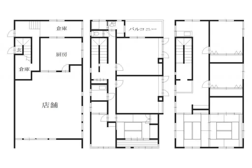
Floorplan

Source:View original listing
Loading...
Est. Total (incl. fees): $148,444
5 views
Available
...
