

























Available
6SDK Property Nantan City Kyoto Prefecture
Loading...
Est. Total (incl. fees): $27,532
8 views
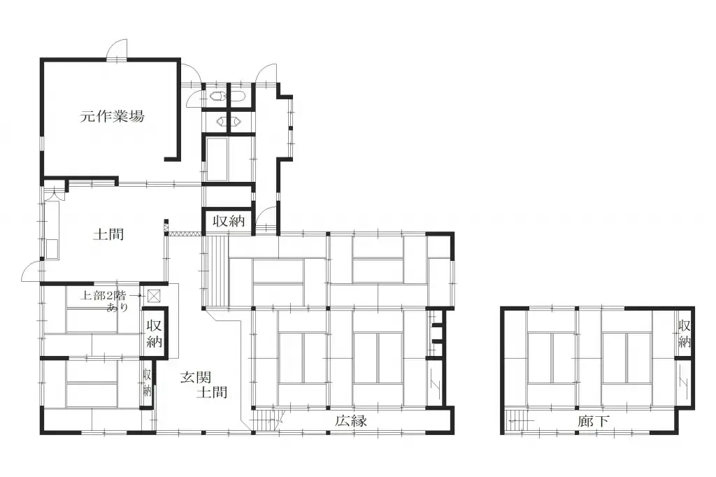
This property is a traditional wooden house situated in Miya-cho, Oono, Nantan City, Kyoto Prefecture. It offers a practical and versatile 6SDK layout, providing ample living space across six main rooms, complemented by a service room, a designated dining area, and a functional kitchen. The total fl...
Property details
YEAR BUILT
Unknown
Bedrooms
6
BUILDING MATERIAL
Wooden
BUILDING SIZE
133.22 sqm
LOT SIZE
489.81 sqm
LAND OWNERSHIP
Freehold
ZONING
Residential
FLOOR
2
PARKING SPACE
—
MINPAKU LIKELIHOOD
Unsure
Nearest station
Airport
Onsen
Supermarket
Conveni
Hospital / Clinic
Floorplan

Source:View original listing
Loading...
Est. Total (incl. fees): $27,532
8 views
Available
...
