




Available
6DK Kihoku-cho Mie Prefecture
Loading...
Est. Total (incl. fees): $25,446
5 views
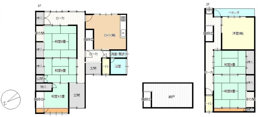
This 6DK wooden residence, constructed in 1947, offers a significant living area of 141.83 square meters situated on a generous 175.2 square meter land plot. The property includes one dedicated bathroom. Its traditional Japanese layout, featuring six rooms plus a dining and kitchen area, provides su...
Property details
YEAR BUILT
1947
🔴
Pre-1981 seismic standard
Bedrooms
6
BUILDING MATERIAL
Wooden
BUILDING SIZE
141.83 sqm
LOT SIZE
175.2 sqm
LAND OWNERSHIP
Freehold
ZONING
Residential
FLOOR
2
PARKING SPACE
—
MINPAKU LIKELIHOOD
Unsure
Nearest station
Airport
Onsen
Supermarket
Conveni
Hospital / Clinic
Floorplan

Source:View original listing
Loading...
Est. Total (incl. fees): $25,446
5 views
Available
...
