

Available
5K Property in Matsuzaki Town, Shizuoka Prefecture
Loading...
Est. Total (incl. fees): $31,009
14 views
1 favorite
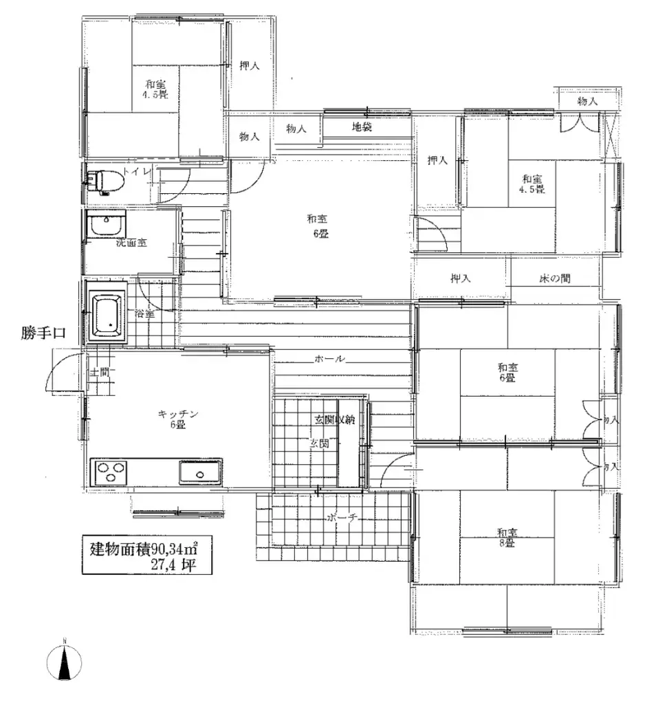
This property, located in Iwashinami, Matsuzaki Town, Kamo District, Shizuoka Prefecture, features a 5K layout. The building spans 90.34 square meters on a generous lot of 310.74 square meters. Constructed in 1989, it is a wooden structure suitable for residential living. The property is situated i...
Property details
YEAR BUILT
1989
Bedrooms
5
BUILDING MATERIAL
Wooden
BUILDING SIZE
90.34 sqm
LOT SIZE
310.74 sqm
LAND OWNERSHIP
Freehold
ZONING
Residential
FLOOR
—
PARKING SPACE
—
MINPAKU LIKELIHOOD
Unsure
Nearest station
Airport
Onsen
Supermarket
Conveni
Hospital / Clinic
Floorplan

Source:View original listing
Loading...
Est. Total (incl. fees): $31,009
14 views
1 favorite
Available
...
