



Available
6K Hida City Gifu Prefecture
Loading...
Est. Total (incl. fees): $28,228
3 views
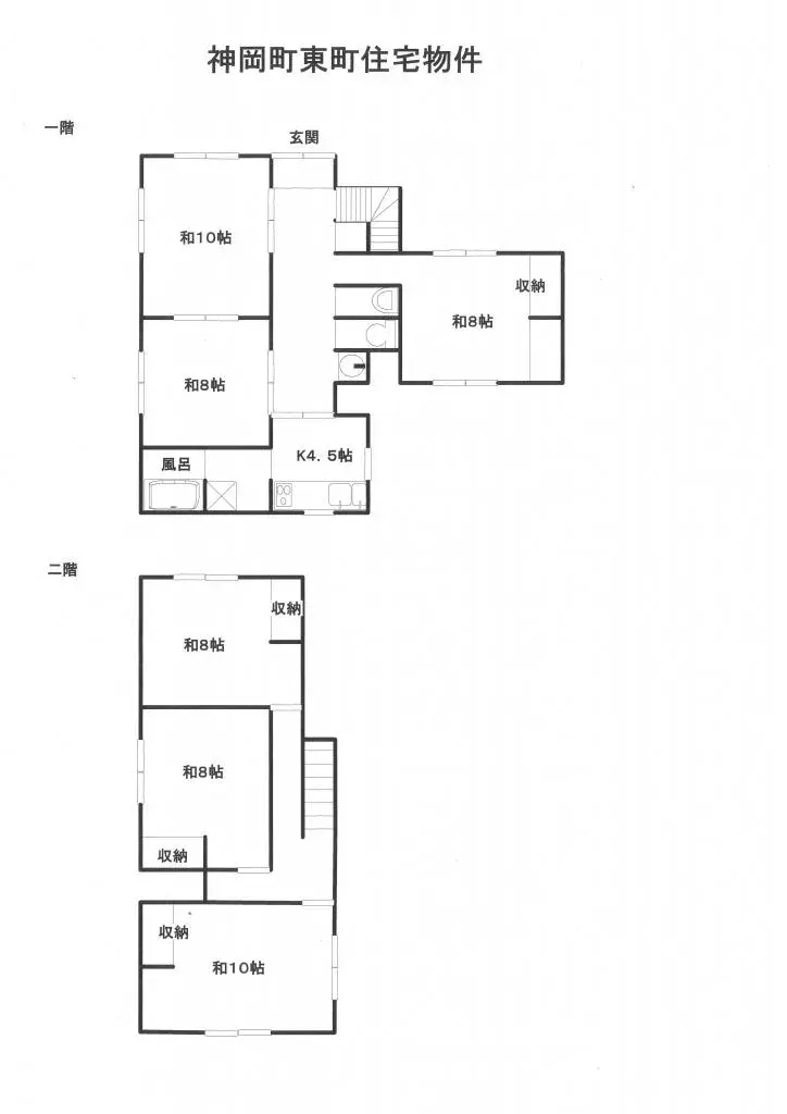
This wooden property, constructed in 1956, offers a substantial living space with a building area of 178.49 square meters on a 346.54 square meter land plot. It features a 6K layout and includes one bathroom, suitable for multi-person occupancy. Located in Kamiokacho Higashimachi, Hida City, Gifu P...
Property details
YEAR BUILT
1956
🔴
Pre-1981 seismic standard
Bedrooms
6
BUILDING MATERIAL
Wooden
BUILDING SIZE
178.49 sqm
LOT SIZE
346.54 sqm
LAND OWNERSHIP
Freehold
ZONING
Residential
FLOOR
2
PARKING SPACE
—
MINPAKU LIKELIHOOD
Unsure
Nearest station
Airport
Onsen
Supermarket
Conveni
Hospital / Clinic
Floorplan

Source:View original listing
Loading...
Est. Total (incl. fees): $28,228
3 views
Available
...
