
Available
Gifu Prefecture Takayama City Detached House
Loading...
Est. Total (incl. fees): $27,532
11 views
1 favorite
This wooden detached house, constructed in 1974, is situated in Asahicho Nishido, Takayama City, Gifu Prefecture. The property features a building area of 98.93 square meters, set upon a significantly large land plot of 1689.0 square meters, offering substantial outdoor space and a private setting....
Property details
YEAR BUILT
1974
🔴
Pre-1981 seismic standard
Bedrooms
-
BUILDING MATERIAL
Wooden
BUILDING SIZE
98.93 sqm
LOT SIZE
1689 sqm
LAND OWNERSHIP
Freehold
ZONING
Residential
FLOOR
2
PARKING SPACE
—
MINPAKU LIKELIHOOD
Unsure
Nearest station
Airport
Onsen
Supermarket
Conveni
Hospital / Clinic
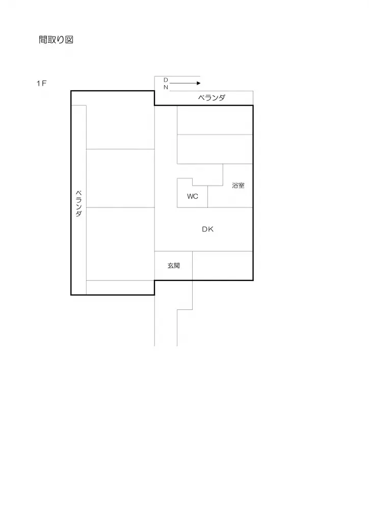
Floorplan

Source:View original listing
Loading...
Est. Total (incl. fees): $27,532
11 views
1 favorite
Available
...
