













Available
5DK Tateshina-machi Nagano Prefecture
Loading...
Est. Total (incl. fees): $26,837
22 views
1 favorite
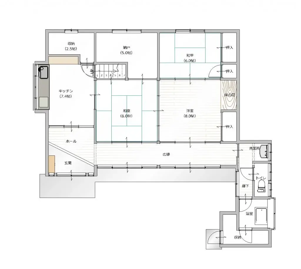
This wooden house features a practical 5DK layout, designed to maximize living space and functionality. The property offers a generous building area of 132.86 square meters, situated on a substantial lot spanning 361.95 square meters, providing ample outdoor potential. It is equipped with one full b...
Property details
YEAR BUILT
Unknown
Bedrooms
5
BUILDING MATERIAL
Wooden
BUILDING SIZE
132.86 sqm
LOT SIZE
361.95 sqm
LAND OWNERSHIP
Freehold
ZONING
Residential
FLOOR
2
PARKING SPACE
—
MINPAKU LIKELIHOOD
Unsure
Nearest station
Airport
Onsen
Supermarket
Conveni
Hospital / Clinic
Floorplan

Source:View original listing
Loading...
Est. Total (incl. fees): $26,837
22 views
1 favorite
Available
...
