









Available
7DK Property Iizuna-machi Nagano Prefecture
Loading...
Est. Total (incl. fees): $41,459
10 views
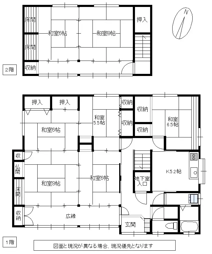
Situated in Iizuna-machi, Kamiminochi-gun, Nagano Prefecture, this wooden house features a practical 7DK layout, ideal for a multi-generational family or those requiring extensive individual spaces. The property boasts a substantial building area of 152.08 square meters and resides on a spacious lot...
Property details
YEAR BUILT
Unknown
Bedrooms
7
BUILDING MATERIAL
Wooden
BUILDING SIZE
152.08 sqm
LOT SIZE
282.69 sqm
LAND OWNERSHIP
Freehold
ZONING
Residential
FLOOR
2
PARKING SPACE
—
MINPAKU LIKELIHOOD
Unsure
Nearest station
Airport
Onsen
Supermarket
Conveni
Hospital / Clinic
Floorplan

Source:View original listing
Loading...
Est. Total (incl. fees): $41,459
10 views
Available
...
