




Available
6DK Property Ono City Fukui Prefecture
Loading...
Est. Total (incl. fees): $17,102
3 views
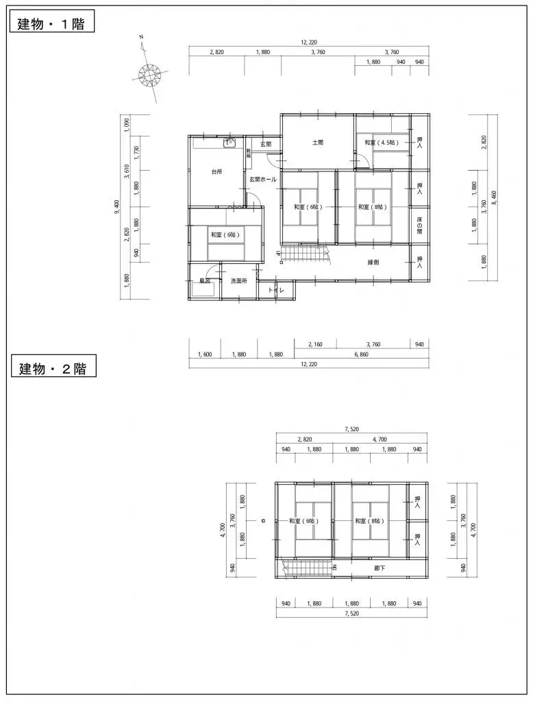
Located in Shobuike, Ono City, Fukui Prefecture, this 6DK property offers substantial living space, making it an excellent option for families. With a generous building footage of 139.08 square meters and an expansive lot footage of 325.6 square meters, the residence provides ample room for various...
Property details
YEAR BUILT
1977
🔴
Pre-1981 seismic standard
Bedrooms
6
BUILDING MATERIAL
Wooden
BUILDING SIZE
139.08 sqm
LOT SIZE
325.6 sqm
LAND OWNERSHIP
Freehold
ZONING
Residential
FLOOR
—
PARKING SPACE
—
MINPAKU LIKELIHOOD
Unsure
Nearest station
Airport
Onsen
Supermarket
Conveni
Hospital / Clinic
Floorplan

Source:View original listing
Loading...
Est. Total (incl. fees): $17,102
3 views
Available
...
