







Available
8K Property Joetsu City Niigata Prefecture
Loading...
Est. Total (incl. fees): $34,485
27 views
2 favorites
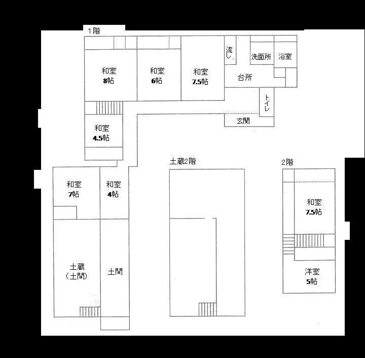
This 8K detached wooden house, constructed in 1972, presents a spacious and functional layout suitable for a range of residential needs. The property features a building footprint of 124.20 square meters, complemented by an exceptionally large land area spanning 1051.77 square meters. This expansive...
Property details
YEAR BUILT
1972
🔴
Pre-1981 seismic standard
Bedrooms
8
BUILDING MATERIAL
Wooden
BUILDING SIZE
124.2 sqm
LOT SIZE
1051.77 sqm
LAND OWNERSHIP
Freehold
ZONING
Residential
FLOOR
2
PARKING SPACE
—
MINPAKU LIKELIHOOD
Unsure
Nearest station
Airport
Onsen
Supermarket
Conveni
Hospital / Clinic
Floorplan

Source:View original listing
Loading...
Est. Total (incl. fees): $34,485
27 views
2 favorites
Available
...
