




Available
House Sado City Niigata Prefecture
Loading...
Est. Total (incl. fees): $27,532
6 views
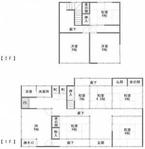
This wooden house, constructed in 1971, is situated on a remarkably substantial plot spanning 3860.36 square meters. The building itself encompasses 166.45 square meters and features one bathroom. Located in Izumi, Sado City, Niigata Prefecture, this property offers a uniquely peaceful and expansive...
Property details
YEAR BUILT
1971
🔴
Pre-1981 seismic standard
Bedrooms
-
BUILDING MATERIAL
Wooden
BUILDING SIZE
166.45 sqm
LOT SIZE
3860.36 sqm
LAND OWNERSHIP
Freehold
ZONING
Residential
FLOOR
—
PARKING SPACE
—
MINPAKU LIKELIHOOD
Unsure
Nearest station
Airport
Onsen
Supermarket
Conveni
Hospital / Clinic
Floorplan

Source:View original listing
Loading...
Est. Total (incl. fees): $27,532
6 views
Available
...
