









Available
[7K Property] Tainai City Niigata Prefecture
Loading...
Est. Total (incl. fees): $75,232
5 views
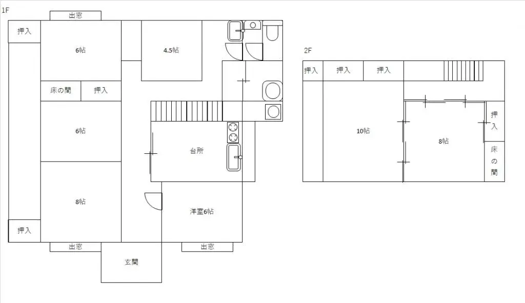
This 7K wooden property, constructed in 1961, boasts a substantial total floor area of 159.19 square meters. It is set upon a remarkably expansive lot spanning 931.9 square meters, presenting significant potential for a wide array of uses, from extensive landscaping to future development. Located in...
Property details
YEAR BUILT
1961
🔴
Pre-1981 seismic standard
Bedrooms
7
BUILDING MATERIAL
Wooden
BUILDING SIZE
159.19 sqm
LOT SIZE
931.9 sqm
LAND OWNERSHIP
Freehold
ZONING
Residential
FLOOR
—
PARKING SPACE
—
MINPAKU LIKELIHOOD
Unsure
Nearest station
Airport
Onsen
Supermarket
Conveni
Hospital / Clinic
Floorplan

Source:View original listing
Loading...
Est. Total (incl. fees): $75,232
5 views
Available
...
