









Available
4K Tainai City Niigata Prefecture
Loading...
Est. Total (incl. fees): $20,579
9 views
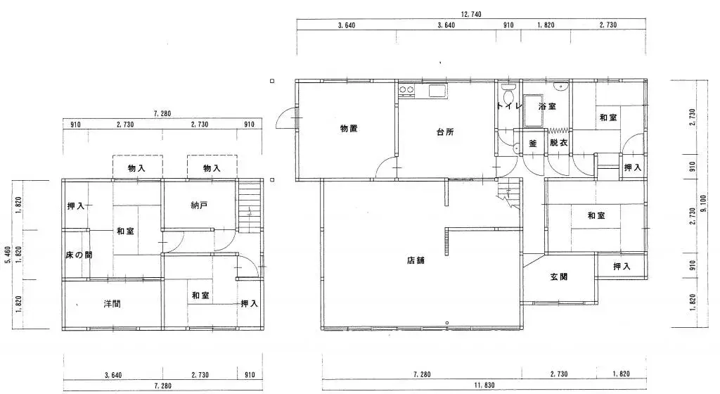
This property presents a 4K layout wooden house, strategically positioned in Hirakita, Tainai City, Niigata Prefecture, directly adjacent to Hirakita Station. Built in 1967, the residence encompasses a substantial building area of 144.90 square meters, set on a generous land plot of 150.98 square me...
Property details
YEAR BUILT
1967
🔴
Pre-1981 seismic standard
Bedrooms
4
BUILDING MATERIAL
Wooden
BUILDING SIZE
144.9 sqm
LOT SIZE
150.98 sqm
LAND OWNERSHIP
Freehold
ZONING
Residential
FLOOR
2
PARKING SPACE
—
MINPAKU LIKELIHOOD
Unsure
Nearest station
Airport
Onsen
Supermarket
Conveni
Hospital / Clinic
Floorplan

Source:View original listing
Loading...
Est. Total (incl. fees): $20,579
9 views
Available
...
