








Available
9K Property Tainai City, Niigata Prefecture
Loading...
Est. Total (incl. fees): $12,223
52 views
2 favorites
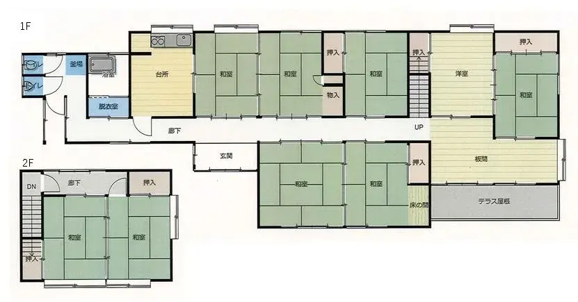
This property is a wooden structure house built in 1966, situated in Shibahashi, Tainai City, Niigata Prefecture. It features a substantial land area of 622.41 square meters, providing extensive outdoor potential, complemented by a building footprint of 176.25 square meters. The 9K layout offers co...
Property details
YEAR BUILT
1966
🔴
Pre-1981 seismic standard
Bedrooms
9
BUILDING MATERIAL
Wooden
BUILDING SIZE
176.25 sqm
LOT SIZE
622.41 sqm
LAND OWNERSHIP
Freehold
ZONING
Residential
FLOOR
2
PARKING SPACE
—
MINPAKU LIKELIHOOD
Unsure
Nearest station
Airport
Onsen
Supermarket
Conveni
Hospital / Clinic
Floorplan

Source:View original listing
Loading...
Est. Total (incl. fees): $12,223
52 views
2 favorites
Available
...
