








Available
4LDK Property Oshu City Iwate Prefecture
Loading...
Est. Total (incl. fees): $98,224
2 views
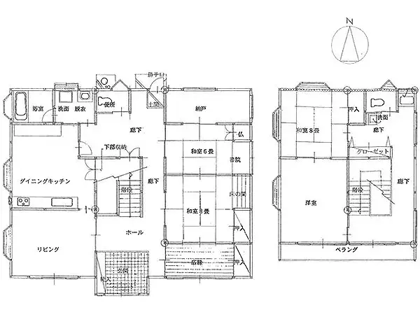
This 4LDK wooden-structure property is situated on a substantial 826.22 square meter plot in Koromogawa Furudo, Oshu City, Iwate Prefecture. Constructed in 1998, it offers a generous building area of 208.4 square meters, providing ample space for comfortable living and features a single bathroom. Th...
Property details
YEAR BUILT
1998
Bedrooms
4
BUILDING MATERIAL
Wooden
BUILDING SIZE
208.4 sqm
LOT SIZE
826.22 sqm
LAND OWNERSHIP
Freehold
ZONING
Residential
FLOOR
2
PARKING SPACE
—
MINPAKU LIKELIHOOD
Unsure
Nearest station
Airport
Onsen
Supermarket
Conveni
Hospital / Clinic
Floorplan

Source:View original listing
Loading...
Est. Total (incl. fees): $98,224
2 views
Available
...
