







Available
[7DK Property] Oshu City, Iwate Prefecture
Loading...
Est. Total (incl. fees): $24,056
4 views
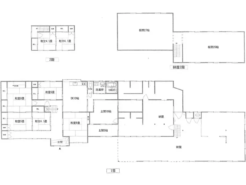
This substantial 7DK residential property is located in Oshu City, Iwate Prefecture, offering a generously proportioned living space. The primary building spans 150.46 square meters, situated on an expansive lot measuring 761.67 square meters. Constructed in 1972 using durable wooden framing, the re...
Property details
YEAR BUILT
1972
🔴
Pre-1981 seismic standard
Bedrooms
7
BUILDING MATERIAL
Wooden
BUILDING SIZE
150.46 sqm
LOT SIZE
761.67 sqm
LAND OWNERSHIP
Freehold
ZONING
Residential
FLOOR
2
PARKING SPACE
—
MINPAKU LIKELIHOOD
Unsure
Nearest station
Airport
Onsen
Supermarket
Conveni
Hospital / Clinic
Floorplan

Source:View original listing
Loading...
Est. Total (incl. fees): $24,056
4 views
Available
...
