Available
Aomori Prefecture Hirosaki City 3LDK Property
Loading...
Est. Total (incl. fees): $91,050
4 views
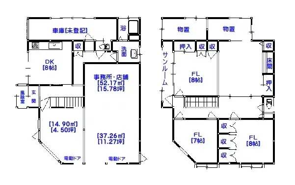
This 3LDK property, situated in Hirosaki City, Aomori Prefecture, presents a substantial living space with a total building footage of 205.39 square meters on a generous land area of 164.92 square meters. Constructed with durable wood in 1984, this residence offers a practical and enduring structure...
Property details
YEAR BUILT
1984
Bedrooms
3
BUILDING MATERIAL
Wooden
BUILDING SIZE
205.39 sqm
LOT SIZE
164.92 sqm
LAND OWNERSHIP
Freehold
ZONING
Industrial
FLOOR
—
PARKING SPACE
—
MINPAKU LIKELIHOOD
Unsure
Nearest station
Airport
Onsen
Supermarket
Conveni
Hospital / Clinic
Floorplan

Source:View original listing
Loading...
Est. Total (incl. fees): $91,050
4 views
Available
...
