




















あり
3LDK物件 御宿町 千葉県
読み込み中...
概算合計(諸費用込み): $303,411
2 閲覧
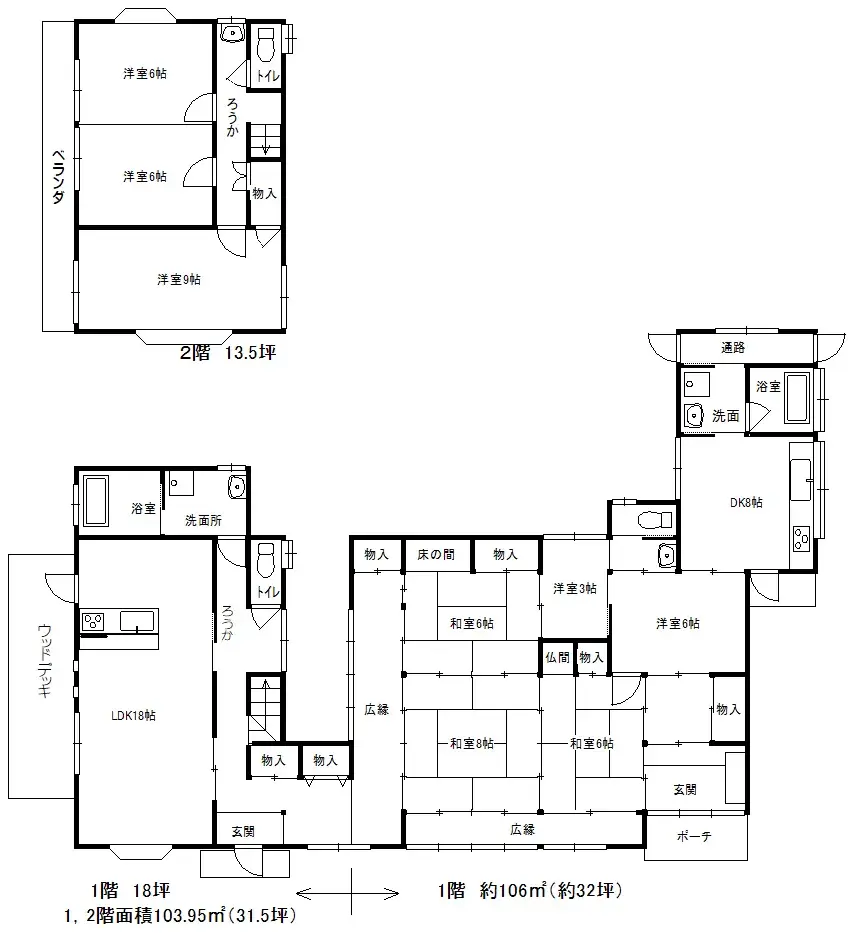
この物件は、広大な敷地3496.0平米に建つ木造の3LDK構造です。延床面積は209.95平米で、1992年築となります。 事業用資産としての適性があり、民泊やグランピング施設など多目的な用途が想定されます。観光名所である月の砂漠・御宿海水浴場に近く、周辺には買い物施設も充実しており利便性の高い立地です。
物件詳細
建築年
1992
寝室
3
構造
木造
建物面積
209.95 m²
土地面積
3496 m²
土地権利
所有権
用途地域
商業地
階
2
駐車場
—
民泊のしやすさ
可能性が高い
最寄り駅
空港
温泉
スーパー
コンビニ
病院・クリニック
間取り図

出典:掲載元サイトを見る
読み込み中...
概算合計(諸費用込み): $303,411
2 閲覧
あり
...
