




































あり
5LDK物件 北海道小樽市
読み込み中...
概算合計(諸費用込み): $33,790
5 閲覧
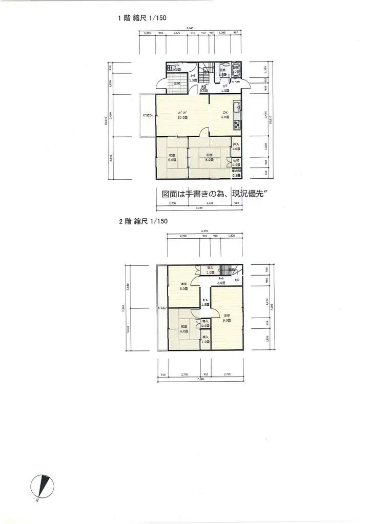
北海道小樽市桜5丁目に位置する、築1972年の木造5LDK住宅です。敷地面積294.01㎡、建物面積140.13㎡を有し、室内はリフォーム済みで即入居が可能です。閑静な第一種低層住居専用地域内にあり、主要採光面は南東向き、整形地です。 車庫はワゴン車駐車可能で、バスルームは1箇所です。落ち着いた住環境を求める方におすすめの物件です。
物件詳細
建築年
1972
🔴
Pre-1981 seismic standard
寝室
5
構造
木造
建物面積
140.13 m²
土地面積
294.01 m²
土地権利
所有権
用途地域
住宅地
階
3
駐車場
—
民泊のしやすさ
可能性が低い
最寄り駅
空港
温泉
スーパー
コンビニ
病院・クリニック
間取り図

出典:掲載元サイトを見る
読み込み中...
概算合計(諸費用込み): $33,790
5 閲覧
あり
...
