




















あり
3SLDK 船橋市 千葉県
読み込み中...
概算合計(諸費用込み): $268,974
1 閲覧
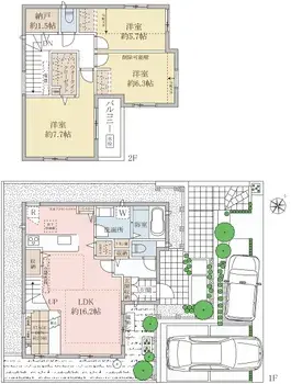
千葉県船橋市に佇む、2021年築の木造3SLDK住宅。敷地面積は135.50㎡、建物面積95.01㎡を有します。本物件は全76邸のポラスグループ旧分譲地内にあり、整備された住環境が提供されます。 1階には開放的な16.2帖のLDKと2.5帖のSTAGE DENが設けられています。2階の洋室2部屋は、有償工事により12帖の広々とした1部屋に変更可能です。多様なライフスタイルに対応する柔軟性と、築浅ならではの良好な状態が特徴です。
物件詳細
建築年
2021
寝室
3
構造
木造
建物面積
95.01 m²
土地面積
135.5 m²
土地権利
所有権
用途地域
住宅地
階
2
駐車場
—
民泊のしやすさ
不明
最寄り駅
空港
温泉
スーパー
コンビニ
病院・クリニック
間取り図

出典:掲載元サイトを見る
読み込み中...
概算合計(諸費用込み): $268,974
1 閲覧
あり
...
