






あり
4LDK 新座市 埼玉県
読み込み中...
概算合計(諸費用込み): $313,455
4 閲覧
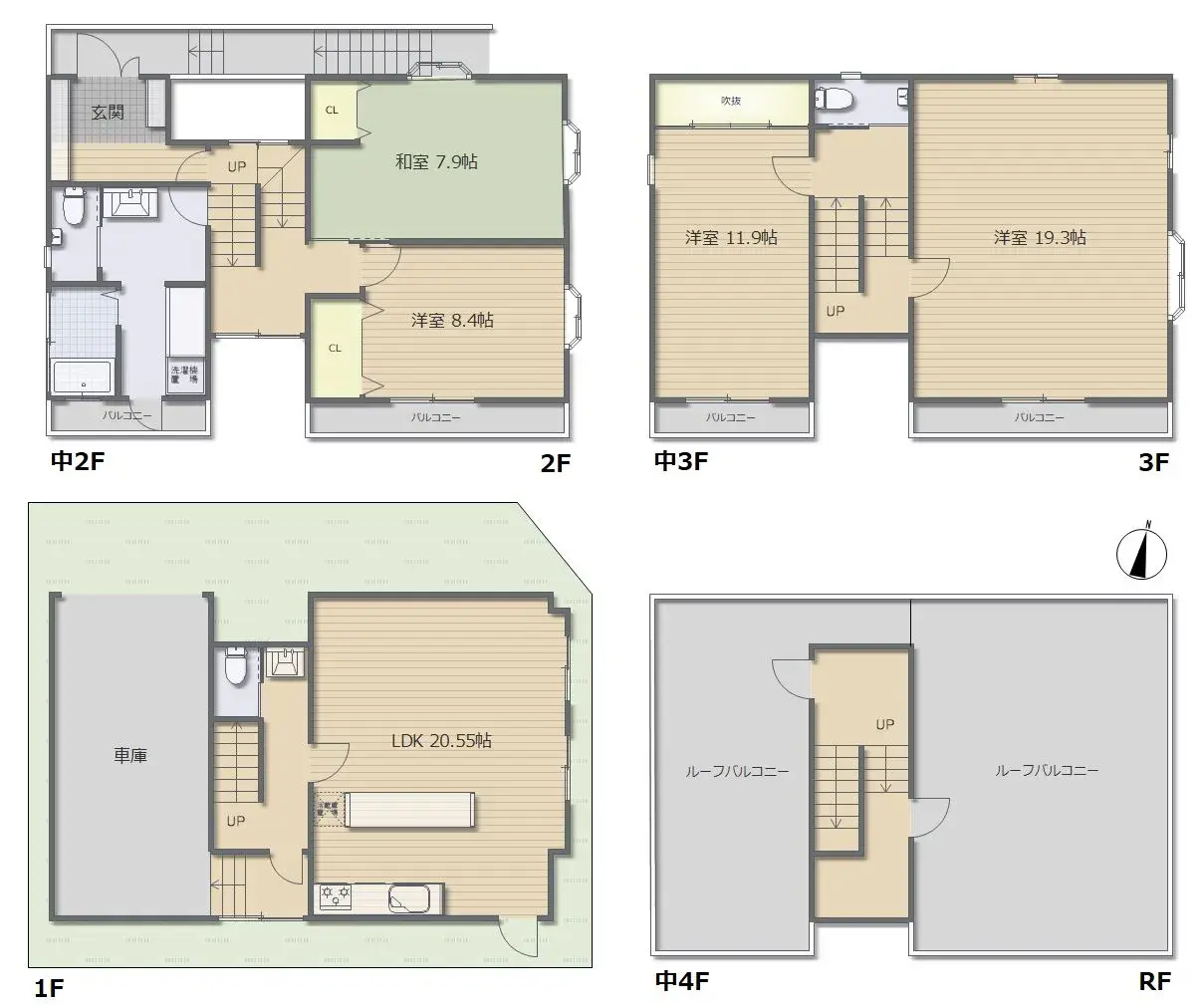
1989年築の鉄骨造4LDK戸建、敷地面積103㎡、建物面積191.63㎡の物件です。室内は中央階段を中心に繋がりを感じさせるスキップフロア設計で、開放的な空間が広がります。複数階にわたる居住スペースは、ご家族の多様なライフスタイルに対応可能です。 特徴的な2箇所のルーフバルコニーは、多目的に利用できる広さを確保しており、趣味の空間やリフレッシュスペースとして活用できます。車庫が完備されているため、車両の保護や悪天候時の利便性が高まります。
物件詳細
建築年
1989
寝室
4
構造
鉄骨造
建物面積
191.63 m²
土地面積
103 m²
土地権利
所有権
用途地域
住宅地
階
3
駐車場
—
民泊のしやすさ
可能性が低い
最寄り駅
空港
温泉
スーパー
コンビニ
病院・クリニック
間取り図

出典:掲載元サイトを見る
読み込み中...
概算合計(諸費用込み): $313,455
4 閲覧
あり
...
