























あり
3SLDK さいたま市 埼玉県
読み込み中...
概算合計(諸費用込み): $268,974
3 閲覧
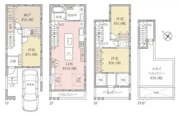
2018年築の木造3SLDK住宅です。延床面積99.67㎡、敷地面積70.08㎡を有し、ご家族での居住に適した広々とした間取りが特徴です。 埼玉県さいたま市南区に位置しており、静かな住環境と都心へのアクセスを両立しています。新しい建築基準に適合し、快適で安心な暮らしを提供します。
物件詳細
建築年
2018
寝室
3
構造
木造
建物面積
99.67 m²
土地面積
70.08 m²
土地権利
所有権
用途地域
住宅地
階
3
駐車場
—
民泊のしやすさ
不明
最寄り駅
空港
温泉
スーパー
コンビニ
病院・クリニック
間取り図

出典:掲載元サイトを見る
読み込み中...
概算合計(諸費用込み): $268,974
3 閲覧
あり
...
