








あり
大分県大分市4LDK物件
読み込み中...
概算合計(諸費用込み): $133,378
4 閲覧
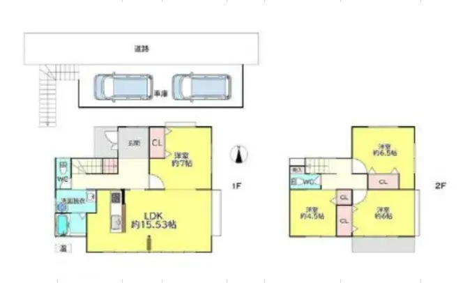
大分市富士見が丘西に位置する、築1981年の木造4LDK戸建です。建物面積は97.7㎡、敷地面積は211.79㎡で、ゆとりのある住空間を提供します。バスルームは1箇所完備されており、ファミリー層に最適な間取りです。 第一種低層住居専用地域に指定されており、静かで落ち着いた住環境が魅力です。周辺は低層住宅が中心で、良好な住環境が維持されています。築年数は経過していますが、ご自身のライフスタイルに合わせてリノベーションを行うことで、快適な住まいを実現できます。
物件詳細
建築年
1981
⚠️
Seismic standard unclear
寝室
4
構造
木造
建物面積
97.7 m²
土地面積
211.79 m²
土地権利
所有権
用途地域
住宅地
階
2
駐車場
—
民泊のしやすさ
可能性が低い
最寄り駅
空港
温泉
スーパー
コンビニ
病院・クリニック
間取り図

出典:掲載元サイトを見る
読み込み中...
概算合計(諸費用込み): $133,378
4 閲覧
あり
...
