

あり
4LDK 平戸市 長崎県
読み込み中...
概算合計(諸費用込み): $48,412
4 閲覧
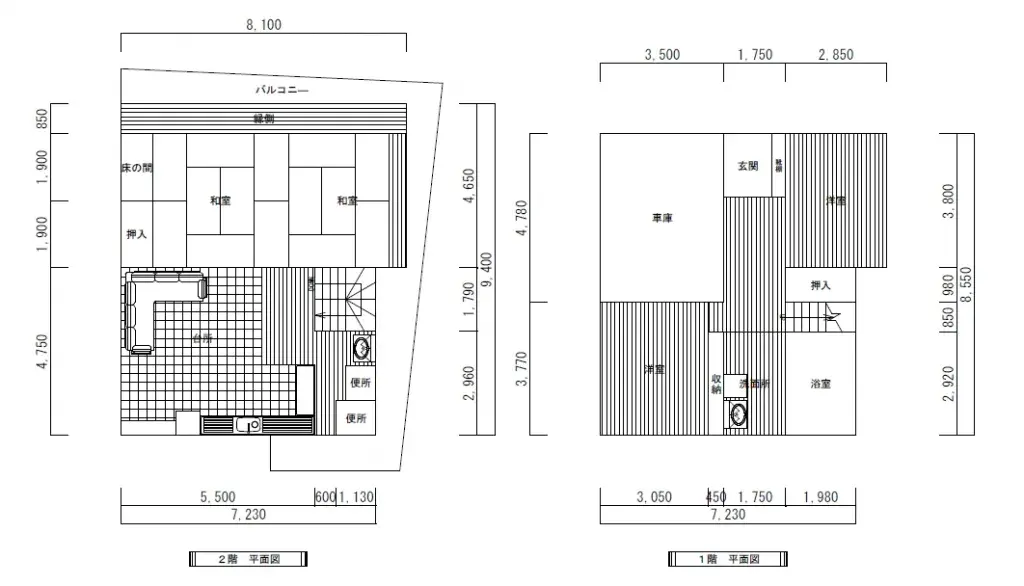
この物件は長崎県平戸市生月町里免に位置する、1990年築の4LDK住宅です。建物面積は144.35㎡、敷地面積は115.69㎡を誇り、広々とした居住空間を提供します。構造は木・鉄筋コンクリート造で、堅牢な造りとなっています。 複数家族での居住や、リモートワークスペースの確保にも適した間取りです。平戸市の閑静な住宅街にあり、日常生活に必要な施設へのアクセスも考慮された立地です。本物件は、安定した住環境をお求めの方におすすめできる一戸建てです。
物件詳細
建築年
1990
寝室
4
構造
その他 木・鉄筋コンクリート造
建物面積
144.35 m²
土地面積
115.69 m²
土地権利
所有権
用途地域
住宅地
階
2
駐車場
—
民泊のしやすさ
不明
最寄り駅
空港
温泉
スーパー
コンビニ
病院・クリニック
間取り図

出典:掲載元サイトを見る
読み込み中...
概算合計(諸費用込み): $48,412
4 閲覧
あり
...
