

















あり
長崎県壱岐市6LDK物件
読み込み中...
概算合計(諸費用込み): $41,459
2 閲覧
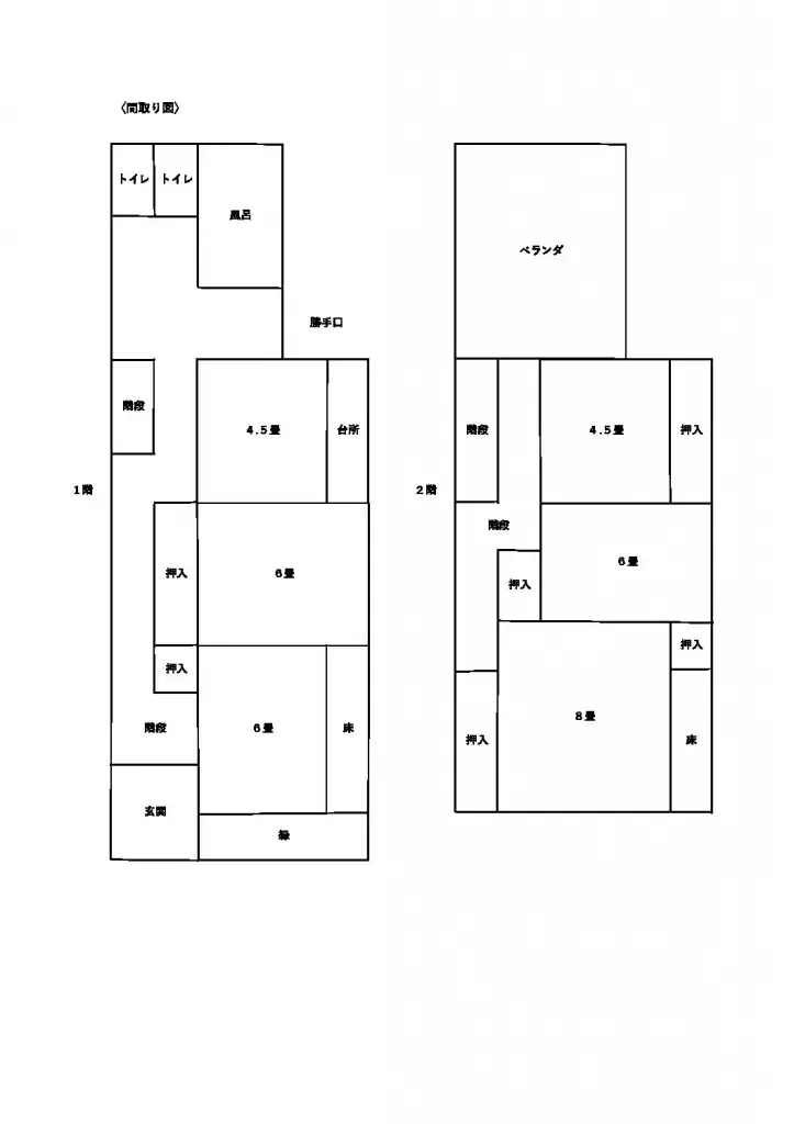
この物件は長崎県壱岐市芦辺町瀬戸浦に位置する6LDKの一戸建てです。建物面積は113.85m²で、1つの浴室を備えています。築年数は不明ですが、構造は木造瓦葺で、安定した居住空間を提供します。 壱岐市は自然豊かな離島で、穏やかな環境での生活を求める方に適しています。この物件は、広々とした間取りで家族での居住や、リモートワーク拠点としても活用可能です。落ち着いた住環境で、地域の魅力を存分に享受できます。
物件詳細
建築年
Unknown
寝室
6
構造
その他 木造瓦葺
建物面積
113.85 m²
土地面積
0 m²
土地権利
所有権
用途地域
住宅地
階
2
駐車場
—
民泊のしやすさ
不明
最寄り駅
空港
温泉
スーパー
コンビニ
病院・クリニック
間取り図

出典:掲載元サイトを見る
読み込み中...
概算合計(諸費用込み): $41,459
2 閲覧
あり
...
