







あり
6DK物件 西条市 愛媛県
読み込み中...
概算合計(諸費用込み): $82,440
4 閲覧
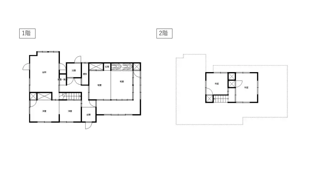
愛媛県西条市北条に位置するこの6DK物件は、延床面積131.76㎡、敷地面積731.85㎡と広大な敷地が特徴です。建物は木造構造であり、豊富な居室と水回りの設備を備えています。家庭菜園や駐車スペースなど、多様な用途に利用可能な広い庭が魅力です。 周辺は落ち着いた住環境で、生活に必要な施設へのアクセスも考慮されます。築年数は不明ですが、既存建物の現況を確認し、必要に応じた改修を前提とした検討が推奨されます。
物件詳細
建築年
Unknown
寝室
6
構造
木造
建物面積
131.76 m²
土地面積
731.85 m²
土地権利
所有権
用途地域
住宅地
階
—
駐車場
—
民泊のしやすさ
不明
最寄り駅
空港
温泉
スーパー
コンビニ
病院・クリニック
間取り図

出典:掲載元サイトを見る
読み込み中...
概算合計(諸費用込み): $82,440
4 閲覧
あり
...
