




あり
2DK物件 まんのう町 香川県
読み込み中...
概算合計(諸費用込み): $35,876
19 閲覧
3 お気に入り
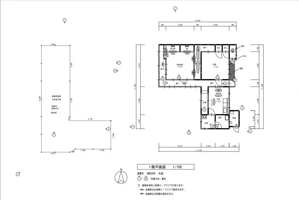
築年数1961年の木造2DK物件です。建物面積は85.93平方メートルを有し、1200.00平方メートルという広大な敷地が特徴です。浴室は1箇所完備されており、基本的な生活機能が整っています。 香川県仲多度郡まんのう町佐文に位置し、静かで自然豊かな住環境が魅力です。この広大な敷地は、家庭菜園やガーデニング、または将来的な活用など、多様なニーズに応える可能性を秘めています。
物件詳細
建築年
1961
🔴
Pre-1981 seismic standard
寝室
2
構造
木造
建物面積
85.93 m²
土地面積
1200 m²
土地権利
所有権
用途地域
住宅地
階
1
駐車場
—
民泊のしやすさ
不明
最寄り駅
空港
温泉
スーパー
コンビニ
病院・クリニック
間取り図

出典:掲載元サイトを見る
読み込み中...
概算合計(諸費用込み): $35,876
19 閲覧
3 お気に入り
あり
...
