


あり
6DK物件 まんのう町 香川県
読み込み中...
概算合計(諸費用込み): $47,021
13 閲覧
1 お気に入り
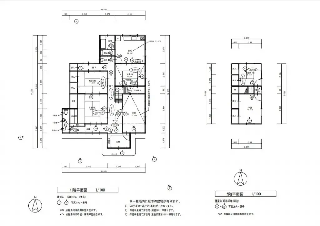
この物件は香川県仲多度郡まんのう町吉野に位置し、広々とした6DKの間取りが特徴です。1977年築の木造建築で、延床面積は151.14㎡とゆとりがあります。広大な757.56㎡の敷地は、庭や駐車場、さらには家庭菜園など多目的に利用可能です。 1977年築のため、購入後にはリフォームやリノベーションを検討することで、現代のライフスタイルに合わせた快適な住空間を創造できます。自然豊かな環境でのんびりとした暮らしを求める方や、広大な敷地を活かして趣味を楽しみたい方におすすめの物件です。
物件詳細
建築年
1977
🔴
Pre-1981 seismic standard
寝室
6
構造
木造
建物面積
151.14 m²
土地面積
757.56 m²
土地権利
所有権
用途地域
住宅地
階
2
駐車場
—
民泊のしやすさ
不明
最寄り駅
空港
温泉
スーパー
コンビニ
病院・クリニック
間取り図

出典:掲載元サイトを見る
読み込み中...
概算合計(諸費用込み): $47,021
13 閲覧
1 お気に入り
あり
...
