


















あり
9SLDK物件 赤磐市 岡山県
読み込み中...
概算合計(諸費用込み): $75,232
6 閲覧
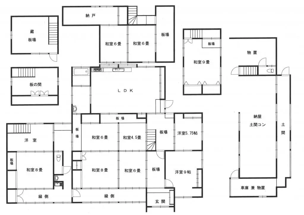
本物件は岡山県赤磐市釣井に位置する築1935年の木造住宅です。敷地面積は699.17㎡、延床面積は291.25㎡を有し、広範な居住空間を提供します。間取りは9SLDKと多用途に対応可能な設計です。 浴室は1箇所。1935年築の特性から、入居後の改修やリノベーションにより、現代的な快適性と伝統的な魅力を融合させることが可能です。大規模な敷地と間取りは、多世帯居住や趣味の空間確保にも適しています。
物件詳細
建築年
1935
🔴
Pre-1981 seismic standard
寝室
9
構造
木造
建物面積
291.25 m²
土地面積
699.17 m²
土地権利
所有権
用途地域
住宅地
階
2
駐車場
—
民泊のしやすさ
可能性が低い
最寄り駅
空港
温泉
スーパー
コンビニ
病院・クリニック
間取り図

出典:掲載元サイトを見る
読み込み中...
概算合計(諸費用込み): $75,232
6 閲覧
あり
...
