















あり
9DK物件 福井市 福井県
読み込み中...
概算合計(諸費用込み): $10,137
74 閲覧
1 お気に入り
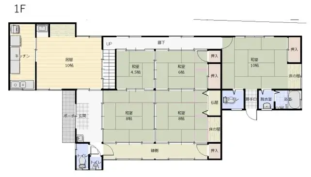
福井市居倉町に位置する、広々とした9DKの間取りを持つ木造住宅です。敷地面積171.0平米、建物面積179.07平米とゆとりのある空間が魅力です。1957年築ですが、日本の伝統的な木造建築の構造が特徴で、リノベーションにより現代のライフスタイルに合わせた住まいとして生まれ変わる可能性を秘めています。 本物件は福井市内の閑静な地域にあり、落ち着いた住環境をお求めの方に適しています。浴室は1箇所完備されており、大家族や二世帯での居住にも対応可能です。歴史ある建物を活かし、ご自身の理想の住まいを実現できる機会を提供します。
物件詳細
建築年
1957
🔴
Pre-1981 seismic standard
寝室
9
構造
木造
建物面積
179.07 m²
土地面積
171 m²
土地権利
所有権
用途地域
住宅地
階
2
駐車場
—
民泊のしやすさ
不明
最寄り駅
空港
温泉
スーパー
コンビニ
病院・クリニック
間取り図

出典:掲載元サイトを見る
読み込み中...
概算合計(諸費用込み): $10,137
74 閲覧
1 お気に入り
あり
...
