

















あり
7DK物件 大船渡市 岩手県
読み込み中...
概算合計(諸費用込み): $27,532
6 閲覧
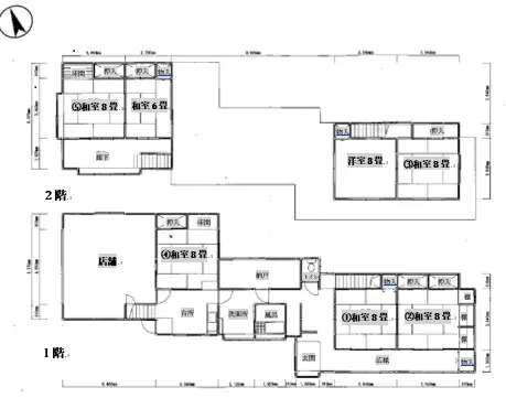
この物件は岩手県大船渡市に位置し、広々とした7DKの間取りが特徴です。木造構造で、延床面積は218.09平方メートル、敷地面積は329.41平方メートルとゆとりのある広さです。浴室は1箇所完備されており、多人数での居住にも適しています。 築年数は不明ですが、この広さと間取りは大家族や多人数での居住に最適です。閑静な住宅街に位置し、落ち着いた住環境を求める方におすすめできる物件です。
物件詳細
建築年
Unknown
寝室
7
構造
木造
建物面積
218.09 m²
土地面積
329.41 m²
土地権利
所有権
用途地域
住宅地
階
2
駐車場
—
民泊のしやすさ
不明
最寄り駅
空港
温泉
スーパー
コンビニ
病院・クリニック
間取り図

出典:掲載元サイトを見る
読み込み中...
概算合計(諸費用込み): $27,532
6 閲覧
あり
...
