
あり
青森県南部町5DK物件
読み込み中...
概算合計(諸費用込み): $213,014
4 閲覧
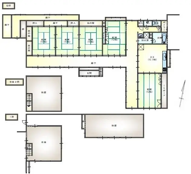
青森県三戸郡南部町に位置する本物件は、広々とした5DKの間取りが魅力です。延床面積193.76㎡、敷地面積は2150.77㎡と非常に広大で、多様な用途に対応可能です。1983年築の木造住宅で、ゆとりある居住空間を提供します。 本物件は、自然豊かな環境に位置しており、静かで落ち着いた暮らしを求める方に最適です。広大な敷地を活かした庭園の造成や、趣味の空間としての利用も検討できます。周辺地域へのアクセスも確保されており、生活利便性も兼ね備えています。
物件詳細
建築年
1983
寝室
5
構造
木造
建物面積
193.76 m²
土地面積
2150.77 m²
土地権利
所有権
用途地域
住宅地
階
—
駐車場
—
民泊のしやすさ
不明
最寄り駅
空港
温泉
スーパー
コンビニ
病院・クリニック
間取り図

出典:掲載元サイトを見る
読み込み中...
概算合計(諸費用込み): $213,014
4 閲覧
あり
...
