

















有
5LDK房产 青森县青森市
加载中...
预计总费用(含手续费): $191,491
2 次浏览
位于青森市浪馆前田三丁目的5LDK木结构两层住宅。 总建筑面积135.80平方米,占地面积180.11平方米。 建于2000年,特点是拥有镀锌钢板屋顶的坚固结构。 1间浴室。 本物业被指定为第一种低层住宅专用区,确保了安静而宁静的居住环境。通往主要干道交通便利,周边生活所需设施一应俱全。是一处实用的住宅。
房产详情
建造年份
2000
卧室
5
建筑材料
木结构镀锌钢板屋顶二层
建筑面积
135.8 平方米
土地面积
180.11 平方米
土地所有权
永久产权
用地性质
住宅区
楼层
2
停车位
—
短租可行性
待定
最近车站
机场
温泉
超市
便利店
医院/诊所
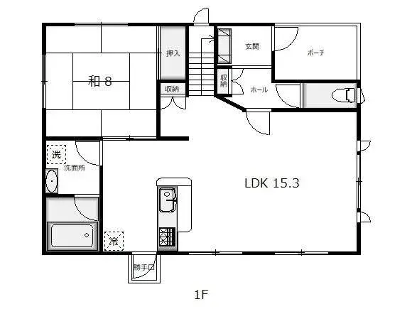
户型图

来源:查看原始链接
加载中...
预计总费用(含手续费): $191,491
2 次浏览
有
...
