






























有
5LDK 物业 札幌市 北海道
加载中...
预计总费用(含手续费): $182,881
1 次浏览
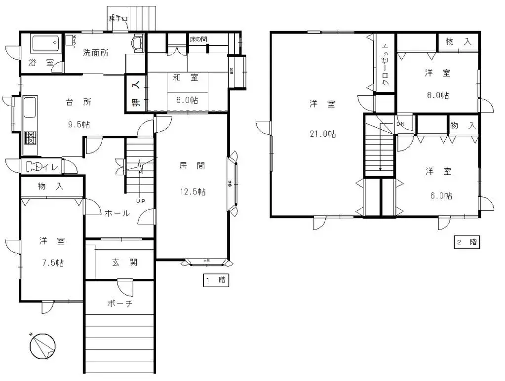
北海道札幌市建造的1989年木造5LDK。占地497.82平方米(约150.59坪),朝西南,采光良好。建筑面积174.32平方米,采用双层框架结构。宽敞的后院可进行烧烤。 室内为宽敞的5LDK。一楼日式房间设有暖桌,二楼西式房间宽敞达21帖。兼具功能性和宽敞度的舒适空间。配备一间浴室。全家可在此舒适生活。
房产详情
建造年份
1989
卧室
5
建筑材料
木造
建筑面积
174.32 平方米
土地面积
497.82 平方米
土地所有权
永久产权
用地性质
住宅区
楼层
2
停车位
—
短租可行性
较难
最近车站
机场
温泉
超市
便利店
医院/诊所
户型图

来源:查看原始链接
加载中...
预计总费用(含手续费): $182,881
1 次浏览
有
...
