



























有
3LDK 物业 砂川市 北海道
加载中...
预计总费用(含手续费): $277,081
1 次浏览
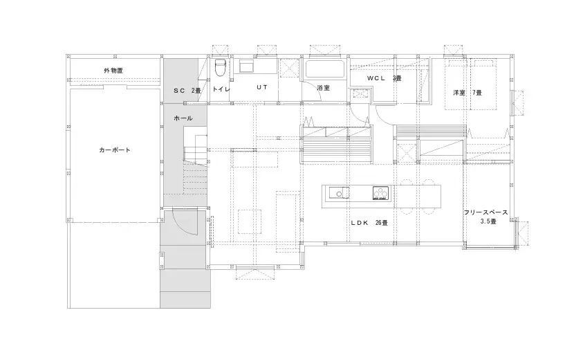
本房产建于2000年,为木结构住宅,专有面积为123.72平方米,占地面积为124.95平方米。3LDK的户型,拥有宽敞的26叠LDK是其特色。已进行最新设备的全方位翻新,提供了兼顾功能性和舒适性的居住空间。 该房产位于砂川市,周边环境便利,可轻松前往生活设施。该房产的设计注重居住性,适合长期稳定居住。可作为独立的独栋住宅使用。
房产详情
建造年份
2000
卧室
3
建筑材料
木造
建筑面积
123.72 平方米
土地面积
124.95 平方米
土地所有权
永久产权
用地性质
住宅区
楼层
2
停车位
—
短租可行性
待定
最近车站
机场
温泉
超市
便利店
医院/诊所
户型图

来源:查看原始链接
加载中...
预计总费用(含手续费): $277,081
1 次浏览
有
...
